После того, как взрослый сын Эмилия и ее мужа со своей подругой перевели своего взрослого сына с подругой из квартиры, они смогли приступить к давно запланированному ремонту. Прежде всего они хотели избавиться от старого санузла, а хозяйка всегда мечтала об окне в ванной комнате. Одновременно хотели сделать ремонт кухни. Эмилия результатом довольна.
Планировка кухни полностью изменилась, в новой кухне разместился столом, за которым могут сидеть до 10 человек.
«Я всегда мечтала о ванной комнате с окном, что в панельной ванной комнате не предусмотрено, а также хотела большой стол на кухне. Я обратилась к архитекторам из OTT. студия Ондрею Фиале и Томашу Хелене, которые и создали это «чудо». Они предложили такой проект перепланировки, что в кухне уместился стол на 10 человек, в ванной комнате появилось не только окно, но и большой душ и две раковины, -говорит Эмилия.
Что нужно было изменить
Архитекторам была поставлена задача изменить большую часть квартиры квадратной планировки. В старой планировке из прямого коридора были входы в ванную и туалет, рядом с ними был проход мимо кладовку в кухню, которая была расположена параллельно коридору.
Квартира перед ремонтом. Желтым отмечены перегородки, которые нужно было убрать
Основной задачей было удалить старый санузел а также кладовку. Благодаря чему новая ванная расширилась до стены с окном, а кухня заняла оставшуюся часть, площадь кладовки и плавно проходит в коридор, где сохранилось место для хранения.
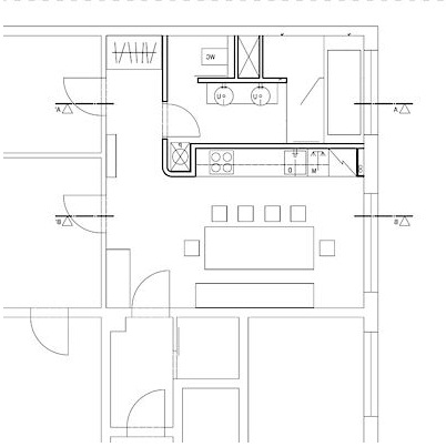
Планировка после ремонта
С перепланировкой была логически связана замена и переустановка водопровода, канализации, полная замена электропроводки и необходимые работой по сносу и кладке.
«Ремонт начался в июле 2015 года, с фирмой Herman-rekonstrukce был подписан договор на проведение работ в течении трех недель, однако, он продлился еще на три недели,  но результат стоит усилий», - говорит  Эмилия.
На кухне вся мебель совершенно новая, изготовленная на заказ по проекту архитектора, который основывался на идее Эмилии.
«Архитекторам пришлось поработать с тем, чтобы водопроводные и канализационные трубы должны были проходить около окна в ванной за новой ванну, поэтому им пришлось решать высоту спада. Я хотела, чтобы стиральная машина была в ванной, и это архитекторы решили так, что спрятали ее в нишу, скрытую за передней дверью ванной. В туалет входим из ванной, закрытой раздвижными дверями, которые прикреплены к потолку », - говорит Эмилия.
Провода, соединяющие светильники, были намеренно оставлены открытыми. Они являются элегантной ссылкой на основной характер люстры над обеденным столом.
Канализацию стиральной машины и кухни спрятали под ступенькой, на которой в ванной комнате установлена ванна с душевой кабиной. Радиатор центрального отопления, традиционно расположенный под окном, заменил в ванной комнате более практичный полотенцесушитель.
В ванной комнате установлены две современные раковины, для мужчины и женщины, ванна и душ находятся на подиуме.
Душевая кабина в ванной.
Полы в ванной и кухне одинаковые, везде уложен ПВХ  серого цвета. Обои также сделаны на заказ, освещение на кухне архитекторы скомбинировали с люстрой над обеденным столом, которые Эмилия купила заранее.
От остальной части ванной комнаты туалет отделен раздвижной дверью.
Три недели вне дома
«Было непростоо, потому что мы должны были уйти из квартиры на три недели, но теперь мы счастливы, и нам все нравится. В то же время я рада, что даже после того, как кладовка была ликвидирована, на кухне осталось достаточно места для хранения, - говорит Эмилия.
Первоначальное состояние квартиры
Новости сайта на вашу электронную почту:









Комментариев нет:
Отправить комментарий